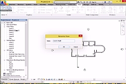
فرمول نویسی شرطی در رویت – بخشی از آموزش رویت استراکچر پیشرفته
بخشی از آموزش رویت استراکچر پیشرفته
آموزش مدل سازی رویت ( مدل سازی ستون کلاسیک )
آموزش مدل سازی در نرم افزار رویت : مدل سازی ستون های کلاسیک در رویت بخشی از کلاس 30 آموزش نرم افزار revit : مدل سازی ستون مارپیچ در رویت به چه صورته ؟ ترسیم ستون رویت با چه تکنیکی انجام میشه ؟ در آموزش رایگان رویت به مدل سازی ستون کلاسیک رویت پرداخته ایم و تمامی مراحل آموزش ساخت ستون کلاسیک در رویت رو به شما آموزش دادیم. همچنین با مدل سازی بزار قاشقی ستون ها هم آشنا می شوید. همچنین مدل سازی ستون های سازه ای رویت، کار بسیار آسانی است که ما به شما آموزش میدیم. https://archart.ir ➥ ( 0919-892-8348 )
آموزش رویت-ترسیم پله
در این ویدیو ترسیم پله های مستقیم و دو طرفه مربوط به کتاب فناوری های ساختمان پایه دوازدهم ساختمان شرح داده شده است.
آموزش رویت-شیت بندی و پرینت
در این ویدیو نحوه شیت بندی و پرینت گرفتن آموزش داده شده است.مربوط به درس فناوری های ساختمان پایه دوازدهم رشته ساختمان
آموزش رویت-هماهنگی چند رشته ای در رویت
آموزش رویت-هماهنگی چند رشته ای در رویت-یکی از مراحل مهم روند بیم هماهنگی چند رشته ای در BIM می باشد….. برای دریافت آموزش های بیشتر وارد وبسایت ما شوید WWW.TAT-BIM.COM
آموزش بازشوها در نرم افزار رویت
این آموزش توسط سایت آرک وب ارایه شده است برای دریافت اطلاعات بیشتر به سایت آرک وب مراجعه کنید.
آموزش لود کردن فمیلی درب در نرم افزار رویت
شما می توانید این فمیلی را در سایت http://archweb.ir دانلود کنید.
حالات شرطی در جداول متره رویت-آموزش رویت
حالات شرطی در جداول متره رویت-آموزش رویت در این ویدیو به چگونگی استفاده از حالات شرطی در نرم افزار رویت می پیردازیم برای دریافت آموزش های بیشتر وارد وبسایت ما شوید www.tat-bim.com
معرفی پک آموزش رویت تاسیسات
معرفی پک آموزش رویت تاسیسات توسط مهندس شهریار مطلبی مدرس مجموعه WWW.ISATIS-BIM.COM
معرفی پک آموزش رویت معماری
در این کلیپ مهندس شهریار مطلبی مدرس پک آموزش رویت معماری ، این مجموعه را معرفی خواهند کرد WWW.ISATIS-BIM.COM
معرفی پک آموزش رویت سازه
معرفی پک آموزش رویت سازه توسط مهندس شهریار مطلبی مدرس مجموعه WWW.ISATIS-BIM.COM
معرفی پک آموزش کار تیمی در رویت – Collaborate
معرفی پک آموزش کار تیمی در رویت – Collaborate توسط مهندس شهریار مطلبی مدرس مجموعه WWW.ISATIS-BIM.COM
آموزش ویری رویت
حرفه ای ترین آموزش ویری رویت ؛ اطلاعات بیشتر در لینک زیر : https://bit.ly/3e9JRlE
آموزش رویت استراکچر
آموزش رویت استراکچر-تکمیلی ترین پکیج آموزشی :اطلاعات بیشتر در لینک زیر : https://bit.ly/2DRsEB7
آموزش مدلسازی Purlin در رویت (بخشی از آموزش رویت استراکچر پیشرفته)
بخشی از پک آموزشی رویت استراکچر پیشرفته…
آموزش افزونه onefilter در رویت
آموزش افزونه onefilter از خانواده Diroots در رویت
آشپزی آسان
آموزش اسپرینگ رول به سبک ای دو محصولی از گروه صنعتی پامین www.pamin-co.ir
پک آموزش رویت محمد پاک نظر
تکمیلی ترین و حرفه ای ترین آموزش نرم افزار رویت : اطلاعات بیشتر در لینک زیر : https://bit.ly/39mN8NX
پک آموزش رویت محمد پاک نظر
تکمیلی ترین و حرفه ای ترین آموزش نرم افزار رویت : اطلاعات بیشتر در لینک زیر : https://bit.ly/39mN8NX
آموزش رویت -دسته بندی ویوها وشیتها و اسکجول ها در رویت
آموزش نرم افزارهای BIM با مهندس بحرینی مقدم
پیش نیاز این آموزش رویت مقدماتی است
آموزش ویری رویت
حرفه ای ترین آموزش ویری رویت ؛ اطلاعات بیشتر در لینک زیر : https://bit.ly/3e9JRlE
آموزش رویت استراکچر
آموزش رویت استراکچر-تکمیلی ترین پکیج آموزشی :اطلاعات بیشتر در لینک زیر : https://bit.ly/2DRsEB7
آموزش مدلسازی Purlin در رویت (بخشی از آموزش رویت استراکچر پیشرفته)
بخشی از پک آموزشی رویت استراکچر پیشرفته…
آموزش افزونه onefilter در رویت
آموزش افزونه onefilter از خانواده Diroots در رویت
آموزش Lookup table در رویت
برای مشاهده سیر آموزش ها به وبسایت ما مراجعه فرمایید
آموزش مدلسازی پیشرفته در رویت
در این ویدیو آموزشی با نحوه مدلسازی پیشرفته پله و رمپ در رویت به صورت ترکیبی اشنا میشویم
آموزش رایگان رویت استراکچر-قسمت 16-مدلسازیورق و بولت در رویت
آموزش رایگان رویت استراکچر-قسمت 16-مدلسازیورق و بولت در رویت آموزش رویت سازه در این قسمبت به بخش اتصالات رسید برای دریافت فایل های تمرینی وارد وبسایت ما شوید tat-bim.com
دیاگرام معماری در رویت-آموزش رایگان رویت معماری
دیاگرام معماری در رویت-آموزش رایگان رویت معماری- در این آموزش به چگونگی ساخت دیاگرام های معماری در نرم افزار رویت می پردازیم برای دریافت آموزش های بیشتر به وبسایت ما مراجعه کنید tat-bim.com
آموزش رویت – قسمت اول
آموزش نرم افزار های عمران و معماری
قسمت اول آموزش مقدماتی نرم افزار رویت در این قسمت محیط کاربری، محیط کار و پنجره شروع نرم افزار رو بررسی کردیم و در آخر نحوه تنظیم واحد در رویت رو یاد گرفتیم.
آموزش و معرفی رویت
تدریس توسط: مهندس یعسوبی—طراحی و نویسنده و مدرس دانشگاه و مدرس نرم افزارهای تخصصی رشت معماری—11سال سابقه تدریس نرم افزارهای تخصصی رشته معماری
آموزش نرم افزار رویت 2019
این ویدئو بخشی از آموزش نرم افزار Revit Architecture 2019 است که آموزش کامل آن را از لینک زیر می توانید تهیه کنید: https://bit.ly/3epJ8h4
آموزش مدلسازی تیر RBS در رویت
آموزش مدلسازی تیر RBS در رویت – بخشی از پکیج رویت استراکچر پیشرفته
آموزش رویت
آموزش جامع و رایگان لومیون (Lumion) زبان اصلی در 13 قسمت، ولی بسیار روان و قابل فهم و دیگه نیازی نیست به فکر رفتن به کلاس باشید. برای دانلود کامل این مجموعه به سایت زاگرس سازه منوی طراحی ویلا مراجعه بفرمایید www.zagrossaze.com
آموزش رویت
دکتر بیم پکیج اموزشی شامل چند پکیج آموزشی از جمله رویت ، فاز 2 ، سازه ، نظام مهندسی و شهرداری ، طراحی نما و … میباشد
آموزش رویت – آموزش نرم افزار رویت
آموزش مقدماتی نرم افزار Revit Architecture، بخش اول از پکیج نرم افزار Revit Architecture. برای دانلود این محصول به وبسایت ما به آدرس www.civilfun.com مراجعه فرمایید.
آشپزی آسان
آموزش اسپرینگ رول به سبک ای دو محصولی از گروه صنعتی پامین www.pamin-co.ir
آموزش رویت – آموزش نرم افزار رویت
آموزش مقدماتی نرم افزار Revit Architecture، بخش اول از پکیج نرم افزار Revit Architecture. برای دانلود این محصول به وبسایت ما به آدرس www.civilfun.com مراجعه فرمایید.
آموزش رویت 2017
بخشی از آموزش نرم افزار رویت 2017 که نسخه کامل آن را از لینک زیر می توانید تهیه کنید: https://bit.ly/2x1H8ed
آموزش رویت Revit
آموزش جامع و رایگان رویت (Revit) زبان اصلی ولی بسیار روان و قابل فهم. برای دانلود کامل این مجموعه به سایت زاگرس سازه منوی طراحی ویلا مراجعه فرمایید.|||www.zagrossaze.com
آموزش رویت 2021
تکنیک مدلسازی Wall Post در رویت همیشه یکی از دغدغه های دوستان رویت کار، مدلسازی بخش Wall Post می باشد. برای اینکار روش های مختلفی وجود دارد که هر کدام دارای معایب و مزایای خودش است. در این قسمت نیز ما یک تکنیک بسیار عالی برای شما خواهیم گفت. سرعت انجام با این روش وو انعطاف پذیری آن بسیار بالاست. در آموزش رویت 2021 شما با صدها ترفندی مانند این آشنا خواهید شد WWW.IRAN-BIM.COM/ONLINE-SHOP
آموزش ویری رویت
اولین آموزش جامع ویری نکست در ایران پکیج ویری RMP محمد پاک نظر کامل ترین پکیج ویری رویت . مشاوره رایگان در مورد پکیج با شماره تلفن زیر : 09050730415 یا در لینک زیر وارد شوید : https://bit.ly/3da8heJ
آموزش رویت – آموزش نرم افزار رویت – آموزش Revit Architecture
آموزش مقدماتی نرم افزار Revit Architecture، بخش اول از پکیج نرم افزار Revit Architecture. برای دانلود این محصول به وبسایت ما به آدرس www.civilfun.com مراجعه فرمایید.
آموزش رویت
آموزش نرم افزار رویت ۲۰۱۷ به صورت تصویری به مدت ۱۵ ساعت به آموزش کامل Revit Architecture
آموزش رویت 2018
آموزش کامل Revit 2018 دانلود رایگان این آموزش از لینک زیر: https://architect-shop.com/product/tutorial-revit-2018/
آموزش رویت Revit
مقایسه رویت و اتوکد ! در زمان مورد نیاز برای مدلسازی و … از بقیه مهندسان معماری عقب نمونید… revitiran.com
آموزش رویت 2019
یکی از مشکلات در ترسیم های دیوارهای منحنی در رویت ، قرار دادن یک پنجره منحنی و به صورت پارامتریک می باشد که در این آموزش یکی از سریعترین و راحت ترین روش ها را در Autodesk Revit 2019 توضیح داده ایم …
آموزش کامل رویت
فروشگاه آبجکت و تکسچر www.3D-Shop.ir
Lynda.com – Revit Architecture 2013 Essential Training فروشگاه گرافیکی www.۳D-Shop.ir
آشپزی آسان
آموزش اسپرینگ رول به سبک ای دو محصولی از گروه صنعتی پامین www.pamin-co.ir
آموزش مبانی رویت – آریاگستر
توضیحات کامل در خصوص این محصول : https://aryagostarafzar.com/shop/revit صفر تا صد آموزش مبانی رویت آموزش مبانی رویت و Family ها در رویت ، نرم افزار مدلسازی اطلاعات ساختمان یا BIM ویژه مهندسین معماری ، عمران ، مکانیک ، برق و تاسیسات آموزش Revit به صورت گام به گام و پروژه محور! پیش نیاز یادگیری هر یک از دوره های تخصصی Architecture, Structure و MEP هر آنچه برای ورود به دنیای Revit و BIM به آن نیاز دارید شامل دو دوره آموزشی : ” آموزش مبانی رویت ” و ” آموزش مبانی Family ها در رویت “
آموزش ویری رویت RMP
اولین آموزش جامع ویری نکست در ایران پکیج ویری RMP محمد پاک نظر کامل ترین پکیج ویری رویت . مشاوره رایگان در مورد پکیج با شماره تلفن زیر : 09050730415 یا در لینک زیر وارد شوید : https://bit.ly/3da8heJ
آموزش رویت درس اول
آشنایی با مفهوم BIM آشنایی با نرم افزار رویت معرفی شسته رفته ی محیط نرم افزار شروع به کار و ترسیم
آشپزی آسان
آموزش اسپرینگ رول به سبک ای دو محصولی از گروه صنعتی پامین www.pamin-co.ir
آموزش رویت استراکچر-قسمت 11 (میلگردگذاری در رویت)
آموزش رویت استراکچر-قسمت 11 (میلگردگذاری در رویت)-در این قسمت به چگونگی میلگرد گذاری در نرم افزار رویت و نحوه قرار دادن میلگرد در فونداسیون نرم افزار رویت بپردازیم دریافت فایل های تمرینی در وبسایت ما tat-bim.com
آشپزی آسان
آموزش اسپرینگ رول به سبک ای دو محصولی از گروه صنعتی پامین www.pamin-co.ir
آموزش معماری رویت 2016
Lynda.Revit Architecture 2016 Essential Training (Metric) برای اطلاعات و آموزش های بیشتر به سایت IranBIM.com مراجعه فرمائید.
آموزش رندر با رویت
Lynda.Rendering with Revit برای اطلاعات و آموزش های بیشتر به سایت IranBIM.com مراجعه فرمائید.
آموزش نرم افزار رویت
آموزش آسان آدپتیو در محیط مس رویت توسط (محمد پاک نظر) برای تهیه پک آموزشهای فوق پیشرفته رویت و فرمول نویسی و داینامو به سایت www.Bimlearn.org مراجعه کنید
آموزش کاربردی رویت – بخش دوم
آموزش مقدماتی استفاده از نرم افزار رویت- بخش طبقه بندی پروژه
آموزش نحوه نصب رویت 2021
دراین آموزش شما را با نحوه نصب رویت 2021 آشنا می کنیم. برای دیدن آموزش های رایگان به سایت ما مراجعه کنید. www.arcpro93.com
آموزش رایگان رویت – Revit Architecture – آموزش از اتوکد تا رویت – بخش اول
آموزش رایگان رویت – Revit Architecture – آموزش از اتوکد تا رویت مدرس : مهندس شهریار مطلبی تست کنند Revit به انتخاب کمپانی اتودسک امریکا و دارنده مدرک پروفشینال رویت از آمریکا سطح مقدماتی – مدلسازی فاز 1 معماری و سازه www.Isatis-bim.com
آموزش رایگان رویت – Revit Architecture – آموزش از اتوکد تا رویت – بخش دوم
آموزش رایگان رویت – Revit Architecture – آموزش از اتوکد تا رویت مدرس : مهندس شهریار مطلبی تست کنند Revit به انتخاب کمپانی اتودسک امریکا و دارنده مدرک پروفشینال رویت از آمریکا سطح مقدماتی – مدلسازی فاز 1 معماری و سازه www.Isatis-bim.com
آموزش رایگان رویت – Revit Architecture – آموزش از اتوکد تا رویت – بخش دوازدهم
آموزش رایگان رویت – Revit Architecture – آموزش از اتوکد تا رویت مدرس : مهندس شهریار مطلبی تست کنند Revit به انتخاب کمپانی اتودسک امریکا و دارنده مدرک پروفشینال رویت از آمریکا سطح مقدماتی – مدلسازی فاز 1 معماری و سازه www.Isatis-bim.com
آموزش رایگان رویت – Revit Architecture – آموزش از اتوکد تا رویت – بخش چهاردهم
آموزش رایگان رویت – Revit Architecture – آموزش از اتوکد تا رویت مدرس : مهندس شهریار مطلبی تست کنند Revit به انتخاب کمپانی اتودسک امریکا و دارنده مدرک پروفشینال رویت از آمریکا سطح مقدماتی – مدلسازی فاز 1 معماری و سازه www.Isatis-bim.com
آموزش رایگان رویت – Revit Architecture – آموزش از اتوکد تا رویت – بخش دهم
آموزش رایگان رویت – Revit Architecture – آموزش از اتوکد تا رویت مدرس : مهندس شهریار مطلبی تست کنند Revit به انتخاب کمپانی اتودسک امریکا و دارنده مدرک پروفشینال رویت از آمریکا سطح مقدماتی – مدلسازی فاز 1 معماری و سازه www.Isatis-bim.com
آموزش رایگان رویت – Revit Architecture – آموزش از اتوکد تا رویت – بخش ششم
آموزش رایگان رویت – Revit Architecture – آموزش از اتوکد تا رویت مدرس : مهندس شهریار مطلبی تست کنند Revit به انتخاب کمپانی اتودسک امریکا و دارنده مدرک پروفشینال رویت از آمریکا سطح مقدماتی – مدلسازی فاز 1 معماری و سازه www.Isatis-bim.com
آموزش رایگان رویت – Revit Architecture – آموزش از اتوکد تا رویت – بخش شانزدهم
آموزش رایگان رویت – Revit Architecture – آموزش از اتوکد تا رویت مدرس : مهندس شهریار مطلبی تست کنند Revit به انتخاب کمپانی اتودسک امریکا و دارنده مدرک پروفشینال رویت از آمریکا سطح مقدماتی – مدلسازی فاز 1 معماری و سازه www.Isatis-bim.com
آموزش رایگان رویت – Revit Architecture – آموزش از اتوکد تا رویت – بخش نهم
آموزش رایگان رویت – Revit Architecture – آموزش از اتوکد تا رویت مدرس : مهندس شهریار مطلبی تست کنند Revit به انتخاب کمپانی اتودسک امریکا و دارنده مدرک پروفشینال رویت از آمریکا سطح مقدماتی – مدلسازی فاز 1 معماری و سازه www.Isatis-bim.com
آموزش رویت : جلسه پنجاه ام
آموزش رویت / منبع : آرچ فایل / لینک سایت : ArchFile.ir
آموزش رویت آرشیتکت بخش اول
دپارتمان آموزشی ستاوند پاژ برای ثبت نام در کلاس های حضوری در شهر های تهران و مشهد با شماره : 021-22044080 یا 05137664160 تماس حاصل فرمایید . www.satavanddetail.com www.satavand.com
آموزش رویت : جلسه چهل ام
آموزش رویت / منبع : آرچ فایل / لینک سایت : ArchFile.ir
آموزش رویت آرشیتکت بخش سوم
دپارتمان آموزشی ستاوند پاژ برای ثبت نام در کلاس های حضوری در شهر های تهران و مشهد با شماره : 021-22044080 یا 05137664160 تماس حاصل فرمایید .
آشپزی آسان
آموزش اسپرینگ رول به سبک ای دو محصولی از گروه صنعتی پامین www.pamin-co.ir
آموزش رویت 2017-جلسه سوم
جلسه سوم: آشنایی با ترسیمات دیوار برای دسترسی به آموزش های بیشتر به وب سایت و کانال تلگرامی ما مراجعه کنید. http://archiclassic.ir این آموزش ضبط شده از یک دوره آموزش فشرده رویت استاد بستگانی فقط در سه روز می باشد. برای آموزش های جامع مقدماتی تا فوق پیشرفته میتوانید پکیج استاد را از همین سایت تهیه کنید
آموزش رویت IranBIM – قسمت دوم
بخش دوم آموزش آشنایی با رویت محصول وبسایت جامع IranBIM.com
آموزش رویت جلسه ی دوم
آموزش معماری هیرا 021-44003844 instagram:architect_design_memari مدزس: مهندس حسینی برای خرید باقی فیلم های آموزشی یا شرکت در دوره های آموزشی این مجموعه می توانید با شماره درج شده تماس بگیرید- 44003844- هیرا
آموزش رویت 2016 – قسمت سوم
قسمت سوم توسط : مهندس ایمان کوشکی مدرس تخصصی طراحی داخلی و نرم افزار های معماری www.imankoushki.com
آموزش رویت 2017-جلسه ششم
جلسه ششم: آشنایی با ابزار های ویرایشی لایه بندی دیوار برای دسترسی به آموزش های بیشتر به وب سایت و کانال تلگرامی ما مراجعه کنید. http://archiclassic.ir این آموزش ضبط شده از یک دوره آموزش فشرده رویت استاد بستگانی فقط در سه روز می باشد. برای آموزش های جامع مقدماتی تا فوق پیشرفته میتوانید پکیج استاد را از همین سایت تهیه کنید
آموزش رویت 2017-جلسه هفتم
جلسه هفتم: نحوه ترسیم دیوار پرده ای و ویرایشات دیوار برای دسترسی به آموزش های بیشتر به وب سایت و کانال تلگرامی ما مراجعه کنید. http://archiclassic.ir این آموزش ضبط شده از یک دوره آموزش فشرده رویت استاد بستگانی فقط در سه روز می باشد. برای آموزش های جامع مقدماتی تا فوق پیشرفته میتوانید پکیج استاد را از همین سایت تهیه کنید
آموزش رویت 2017-جلسه چهارم
جلسه چهارم: آشنایی با ترسیمات دیوار برای دسترسی به آموزش های بیشتر به وب سایت و کانال تلگرامی ما مراجعه کنید. http://archiclassic.ir این آموزش ضبط شده از یک دوره آموزش فشرده رویت استاد بستگانی فقط در سه روز می باشد. برای آموزش های جامع مقدماتی تا فوق پیشرفته میتوانید پکیج استاد را از همین سایت تهیه کنید
آموزش رویت : معرفی نرم افزار رویت
آموزش رایگان رویت : معرفی نرم افزار رویت به سایت رویت ایران سر بزنید : revitiran.com
آموزش رویت – آموزش نرم افزار رویت – آموزش Revit Architecture
آموزش مقدماتی نرم افزار Revit Architecture، بخش اول از پکیج نرم افزار Revit Architecture. برای دانلود این محصول به وبسایت ما به آدرس www.civilfun.com مراجعه فرمایید.
آموزش رویت – آموزش نرم افزار رویت – آموزش Revit Architecture
آموزش مقدماتی نرم افزار Revit Architecture، بخش اول از پکیج نرم افزار Revit Architecture. برای دانلود این محصول به وبسایت ما به آدرس www.civilfun.com مراجعه فرمایید.
آموزش رویت 2017
شما می توانید آموزش کامل رویت 2017 را از وبسایت ما به آدرس www.karizmahtec.com دنبال فرمایید…
آموزش رویت ۲۰۱۷
لینك خرید نسخه كامل: http://goo.gl/MKA4x5 با ارسال رایگان و پرداخت هزینه پس از تحویل درمحل-دوره کامل آموزش فارسی رویت آرچیتکچر به همراه آموزش نصب- به همراه پروژه های عملی وسورس پروژه های تمرینی شامل 18فصل کاربردی برای مشاهده سرفصل ها به سایت ما مراجعه کنید.
آموزش رویت 2019
آموزش رویت2019 توسط مهندس جمشیدی برای دانلود نسخه کامل این دوره آموزشی به Lohegostaresh.com مراجعه کنید و یا با شماره های 42843-021 یا تلفن همراه 09102028208 تماس حاصل فرمایید.
آموزش رویت معماری
هدف ما تلاش برای هر چه با دانش تر کردن شماست. لینک گروه آموزشی: https://t.me/joinchat/CIxtPligFWuKUNpj_VFVNA
آموزش رویت استراکچر-قسمت 11 (میلگردگذاری در رویت)
آموزش رویت استراکچر-قسمت 11 (میلگردگذاری در رویت)-در این قسمت به چگونگی میلگرد گذاری در نرم افزار رویت و نحوه قرار دادن میلگرد در فونداسیون نرم افزار رویت بپردازیم دریافت فایل های تمرینی در وبسایت ما tat-bim.com
آشپزی آسان
آموزش اسپرینگ رول به سبک ای دو محصولی از گروه صنعتی پامین www.pamin-co.ir
آشپزی آسان
آموزش اسپرینگ رول به سبک ای دو محصولی از گروه صنعتی پامین www.pamin-co.ir
آموزش رویت – قسمت 1
آموزش مقدماتی نرم افزار رویت – معماری – قسمت 1 – مقدمه و معرفی نرم افزار رویت
آموزش رویت 2020.1
آموزش رویت 2020.1 کانال تلگرام ما: https://t.me/bimlearningsoft وب سایت ما: WWW.IRAN-BIM.COM/SHOP
آموزش رویت 2020.1
آموزش رویت 2020.1 کانال تلگرام ما: https://t.me/bimlearningsoft وب سایت ما: WWW.IRAN-BIM.COM/SHOP
آموزش رویت 2020.1
آموزش رویت 2020.1 کانال تلگرام ما: https://t.me/bimlearningsoft وب سایت ما: WWW.IRAN-BIM.COM/SHOP
آموزش رویت : جلسه یازدهم
آموزش رویت / منبع : آرچ فایل / لینک سایت : ArchFile.ir
آموزش رویت 2020.1
آموزش رویت 2020.1 کانال تلگرام ما: https://t.me/bimlearningsoft وب سایت ما: WWW.IRAN-BIM.COM/SHOP
آموزش رویت 2020.1
آموزش رویت 2020.1 کانال تلگرام ما: https://t.me/bimlearningsoft وب سایت ما: WWW.IRAN-BIM.COM/SHOP
آموزش رویت بخش 4
دپارتمان آموزشی ستاوند پاژ برای ثبت نام در کلاس های حضوری در شهر های تهران و مشهد با شماره : 021-22044080 یا 05137664160 تماس حاصل فرمایید . www.satavanddetail.com www.satavand.com
آموزش مقدماتی رویت (مقدمه)
مقدمه ای برای شروع آموزش مقدماتی رویت مدرس: مهندس محمدجواد راستگویان
آموزش معماری رویت 2018
Lynda.Revit 2018 Essential Training for Architecture (Metric) برای اطلاعات و آموزش های بیشتر به سایت IranBIM.com مراجعه فرمائید.
آموزش مسینگ در رویت
سافت ساز : برای دانلود با لینک مستقیم , و کیفیت عالی این آموزش به این لینک مراجعه کنید: http://softsaaz.ir/?p=769
آموزش کاربردی رویت – بخش دوم
آموزش مقدماتی استفاده از نرم افزار رویت- بخش طبقه بندی پروژه
آموزش نحوه نصب رویت 2021
دراین آموزش شما را با نحوه نصب رویت 2021 آشنا می کنیم. برای دیدن آموزش های رایگان به سایت ما مراجعه کنید. www.arcpro93.com
آموزش رویت – مدلسازی یک ساختمان در Revit رویت IranBIM
در بخش آموزش مدلسازی ساختمان به بررسی عملکرد نرم افزار رویت در ارائه ی خدمات ترسیمات نقشه ها در بخش معماری می پردازیم. بدین ترتیب شما با تک تک ابزارهای مورد نیاز جهت انجام ترسیمات نقشه ها اعم از پلا نهای طبقات، برش ها، بزرگنمایی، پلان های رنگی جهت معرفی فضاهای داخلی و شیت بندی نقشه ها در آخر آشنا می شوید.ا
آموزش Level بندی در رویت
استودیو تخصصی معماری مص دیزاین
دومین قسمت از آموزش نرم افزار رویت | این قسمت : لِوِل (Level)بندی |
آشپزی آسان
آموزش اسپرینگ رول به سبک ای دو محصولی از گروه صنعتی پامین www.pamin-co.ir
آموزش رویت-پارت چهاردهم
سرفصل پارت چهاردهم: نورپردازی- تنظیمات رندر- خروجی گرفتن برای اتوکد
آموزش رویت-پارت پنجم
سرفصل پارت پنجم: ترسیم انواع نرده- ترسیم انواع رمپ- ترسیم انواع پله
آموزش رویت-پارت دهم
سرفصل پارت دهم: محیط کانسپشوآل مس- ایجاد پارمتر- دیوارآجری پارامتریک
آموزش رویت-پارت چهارم
سرفصل پارت چهارم:: مدل های پیچیده سطح مقدماتی(مدل این پلیس)
آموزش رویت 2020.1
آموزش رویت 2020.1 کانال تلگرام ما: https://t.me/bimlearningsoft وب سایت ما: WWW.IRAN-BIM.COM/SHOP
آموزش رویت : جلسه چهاردهم
آموزش رویت / منبع : آرچ فایل / لینک سایت : ArchFile.ir
آموزش رویت : جلسه سیزدهم
آموزش رویت / منبع : آرچ فایل / لینک سایت : ArchFile.ir
آموزش رویت – قسمت 1
آموزش مقدماتی نرم افزار رویت – معماری – قسمت 1 – مقدمه و معرفی نرم افزار رویت
آموزش رویت 2020.1
آموزش رویت 2020.1 کانال تلگرام ما: https://t.me/bimlearningsoft وب سایت ما: WWW.IRAN-BIM.COM/SHOP
آموزش رویت 2020.1
آموزش رویت 2020.1 کانال تلگرام ما: https://t.me/bimlearningsoft وب سایت ما: WWW.IRAN-BIM.COM/SHOP
آموزش رویت 2020.1
آموزش رویت 2020.1 کانال تلگرام ما: https://t.me/bimlearningsoft وب سایت ما: WWW.IRAN-BIM.COM/SHOP
آموزش رویت : جلسه یازدهم
آموزش رویت / منبع : آرچ فایل / لینک سایت : ArchFile.ir
آموزش رویت 2020.1
آموزش رویت 2020.1 کانال تلگرام ما: https://t.me/bimlearningsoft وب سایت ما: WWW.IRAN-BIM.COM/SHOP
آموزش رویت 2020.1
آموزش رویت 2020.1 کانال تلگرام ما: https://t.me/bimlearningsoft وب سایت ما: WWW.IRAN-BIM.COM/SHOP
آموزش رویت بخش 4
دپارتمان آموزشی ستاوند پاژ برای ثبت نام در کلاس های حضوری در شهر های تهران و مشهد با شماره : 021-22044080 یا 05137664160 تماس حاصل فرمایید . www.satavanddetail.com www.satavand.com
آموزش مقدماتی رویت (مقدمه)
مقدمه ای برای شروع آموزش مقدماتی رویت مدرس: مهندس محمدجواد راستگویان
آشپزی آسان
آموزش اسپرینگ رول به سبک ای دو محصولی از گروه صنعتی پامین www.pamin-co.ir
آموزش رایگان رویت – Revit Architecture – آموزش از اتوکد تا رویت – بخش نهم
آموزش رایگان رویت – Revit Architecture – آموزش از اتوکد تا رویت مدرس : مهندس شهریار مطلبی تست کنند Revit به انتخاب کمپانی اتودسک امریکا و دارنده مدرک پروفشینال رویت از آمریکا سطح مقدماتی – مدلسازی فاز 1 معماری و سازه www.Isatis-bim.com
آموزش رایگان رویت – Revit Architecture – آموزش از اتوکد تا رویت – بخش شانزدهم
آموزش رایگان رویت – Revit Architecture – آموزش از اتوکد تا رویت مدرس : مهندس شهریار مطلبی تست کنند Revit به انتخاب کمپانی اتودسک امریکا و دارنده مدرک پروفشینال رویت از آمریکا سطح مقدماتی – مدلسازی فاز 1 معماری و سازه www.Isatis-bim.com
آموزش رویت : جلسه چهل ام
آموزش رویت / منبع : آرچ فایل / لینک سایت : ArchFile.ir
آموزش رویت : جلسه پنجاه ام
آموزش رویت / منبع : آرچ فایل / لینک سایت : ArchFile.ir
آموزش رویت آرشیتکت بخش اول
دپارتمان آموزشی ستاوند پاژ برای ثبت نام در کلاس های حضوری در شهر های تهران و مشهد با شماره : 021-22044080 یا 05137664160 تماس حاصل فرمایید . www.satavanddetail.com www.satavand.com
آموزش رویت آرشیتکت بخش سوم
دپارتمان آموزشی ستاوند پاژ برای ثبت نام در کلاس های حضوری در شهر های تهران و مشهد با شماره : 021-22044080 یا 05137664160 تماس حاصل فرمایید .
آموزش رویت 2016 – قسمت دوم
قسمت دوم توسط : مهندس ایمان کوشکی مدرس تخصصی طراحی داخلی و نرم افزار های معماری www.imankoushki.com
آموزش رویت استراکچر – جلسه سوم
برای دانلود با کیفیت فول اچ دی و مشاهده سایر آموزش ها به وبسایت ما مراجعه فرمایید www.omranovin.ir
آموزش رویت 2017-جلسه شانزدهم
آموزش مقدماتی تا متوسطه نرم افزار Revit (مهندس الیاس بستگانی) جلسه شانزدهم: آموزش ترسیم پله برای دسترسی به آموزش های بیشتر به وب سایت و کانال تلگرامی ما مراجعه کنید. http://archiclassic.ir این آموزش ضبط شده از یک دوره آموزش فشرده رویت استاد بستگانی فقط در سه روز می باشد. برای آموزش های جامع مقدماتی تا فوق پیشرفته میتوانید پکیج استاد را از همین سایت تهیه کنید
آموزش رویت استراکچر – جلسه 33
برای دانلود نسخه کامل به وبسایت ما مراجعه نمایید
آموزش رویت 2017-جلسه سیزدهم
آموزش مقدماتی تا متوسطه نرم افزار Revit (مهندس الیاس بستگانی) جلسه سیزدهم: آموزش ترسیم انواع سقف ها برای دسترسی به آموزش های بیشتر به وب سایت و کانال تلگرامی ما مراجعه کنید. http://archiclassic.ir این آموزش ضبط شده از یک دوره آموزش فشرده رویت استاد بستگانی فقط در سه روز می باشد. برای آموزش های جامع مقدماتی تا فوق پیشرفته میتوانید پکیج استاد را از همین سایت تهیه کنید
آموزش رویت 2017-جلسه چهاردهم
آموزش مقدماتی تا متوسطه نرم افزار Revit (مهندس الیاس بستگانی) جلسه چهاردهم: آموزش ترسیم نرده برای دسترسی به آموزش های بیشتر به وب سایت و کانال تلگرامی ما مراجعه کنید. http://archiclassic.ir این آموزش ضبط شده از یک دوره آموزش فشرده رویت استاد بستگانی فقط در سه روز می باشد. برای آموزش های جامع مقدماتی تا فوق پیشرفته میتوانید پکیج استاد را از همین سایت تهیه کنید
آموزش رویت اتواسپرینک- AutoBranchLine Overview
آموزش تخصصی اطفا حریق، اعلان وتهویه دود
آموزش پلاگین رویت اتواسپرینک، برای مشاهده آموزش های بیشتر به سایت ما مراجعه نمایید. edufire.ir
آموزش رویت 2021
این کلیپ یکی از صدها کلیپ آموزشی مربوط به پک آموزش جامع رویت 2021 می باشد که تمامی ابزارهای رویت معماری به صورت جزء به جزء . همراه با مثال برای هر ابزار انجام شده است. هیچ آموزشی وجود ندارد که با این دیتیل و دقت و جزئیات رویت را توضیح داده باشد و این تضمین در آموزش رویت 2021 تیم ما وجود دارد. WWW.IRAN-BIM.COM/ONLINE-SHOP 09120869500
آموزش رویت استراکچر
آموزش رویت استراکچر بخشی از آموزش های پکیج رویت محمد پاک نظر : ادامه آموزش ها در لینک زیر : https://bimlearn.org/?p=1817
آموزش نصب رویت
ویدیو فارسی آموزش نصب رویت به همراه آموزش کامل فعال سازی و پشتیبانی برای رفع اشکال و پاسخ به سوالات متداول در نصب و فعال سازی رویت 2020 مشاهده آموزش کامل نصب رویت در سایت دانلود معماری : https://arch-projects.com/installing-revit/ اینستاگرام زانیار فتحی ، جهت پرسش و پاسخ : https://www.instagram.com/xaniar_fathi/
آموزش رویت ، نصب نرم افزار رویت
آموزش رویت ، نصب نرم افزار رویت revitiran.com
آموزش رویت – آموزش نرم افزار رویت – آموزش Revit Architecture
آموزش مقدماتی نرم افزار Revit Architecture، بخش اول از پکیج نرم افزار Revit Architecture. برای دانلود این محصول به وبسایت ما به آدرس www.civilfun.com مراجعه فرمایید.
آشپزی آسان
آموزش اسپرینگ رول به سبک ای دو محصولی از گروه صنعتی پامین www.pamin-co.ir
آموزش رویت – آموزش نرم افزار رویت – آموزش Revit Architecture
آموزش مقدماتی نرم افزار Revit Architecture، بخش اول از پکیج نرم افزار Revit Architecture. برای دانلود این محصول به وبسایت ما به آدرس www.civilfun.com مراجعه فرمایید.
آموزش رویت(مقدمه)
با عرض سلام وخسته نباشید برای اولین بار در ایران چنین آموزش رایگان 0تا100رویت رو در اختیارتون گذاشتم تا بتونم در پیشرفت همه سهیم باشم. مطالب کافی در فیلم توضیح داده شده است .این آموزش جنبه معنوی دارد وکپی ونشرآن مجاز وثواب هم دارد.پارت ها رو میتونین از کانال تلگرامی دانلود کنید:memari170@ شماره تماس پشتیبانی:09365453014-علی نفری پور
آموزش مجازی رویت
در این پکیج علاوه بر 0 تا 100 رویت ، فاز 2 و نکات اجرایی ، ضوابط شهرداری مبحث انرژی با استفاده از نرم افزار اکوتک و مدلسازی پارامتریک mass هم کاملا مسلط خواهید شد
آموزش ENSCAPE رویت
www.satavand.com آموزش رویت-استفاده از رندر گرفتن و enscape در نرم افزار رویت آرشیتکت برگزاری کلاس های آموزشی در تهران و مشهد برای کسب اطلاعات بیشتر با شماره تهران 22044080 تماس حاصل فرمایید.
آموزش رویت-شیب بندی
آموزش شیب بندی در نرم افزار رویت مربوط به درس فناوری های ساختمان سال دوازدهم
آموزش رویت-ایجاد برش
در این ویدیو نحوه ایجاد برش در پلان و تنظیمات مربوط به آن نمایش داده شده است-مربوط به درس فناوری های ساختمان،سال دوازدهم
آشپزی آسان
آموزش اسپرینگ رول به سبک ای دو محصولی از گروه صنعتی پامین www.pamin-co.ir
آموزش برنامه رویت : جزئیات
در حالی که Revit ابزاری برای ایجاد مدل سازی اطلاعات (BIM) است و BIM یک فرآیند مبتنی بر مدل 3 بعدی است. پیش نویس و جزئیات 2D هنوز هم جنبه های اساسی گردش کار طراحی Revit را تشکیل می دهد. دانلود محتوا : http://link.cgtools.ir/S8
آموزش رویت- درس اول
درس اول آشنایی با محیط برنامه جهت دانلود آموزش های بیشتر به وبسایت http://bavaghar.com/
آموزش رویت-جلسه اول
آموزش معماری هیرا 021-44003844 instagram:architect_design_memari
آموزش رویت بخش دوم
دپارتمان آموزشی ستاوندپاژ برای ثبت نام در کلاس های حضوری در تهران و مشهد با شماره های 021-22044080 و 05137664160تماس حاصل فرمایید.
آموزش رویت 2020.1
آموزش رویت 2020.1 کانال تلگرام ما: https://t.me/bimlearningsoft وب سایت ما: WWW.IRAN-BIM.COM/SHOP
آموزش رویت : جلسه پانزدهم
آموزش رویت / منبع : آرچ فایل / لینک سایت : ArchFile.ir
آشپزی آسان
آموزش اسپرینگ رول به سبک ای دو محصولی از گروه صنعتی پامین www.pamin-co.ir
آموزش رویت جلسه پنجم
دپارتمان آموزشی ستاوند پاژ با تلاش در جهت پر کردن خلاء بین فضای آموزش دانشگاه و بازار کار اقدام به برگزاری انواع کلاس های آموزشی در بخش دپارتمان خود کرده است . برای کسب اطاعات بیشتر به وب سایت های : www.satavand.com www.satavanddetail.com مراجعه فرمایید .
آموزش رویت مپ revitmep
آموزش تصویری revitmep به زبان کاملا فارسی، برای خرید بسته کامل آموزشی به سایت آلستور مراجعه کنید https://www.alstore.ir شماره تماس و پشتیبانی 09193579628
آموزش رویت 2020.1
آموزش رویت 2020.1 کانال تلگرام ما: https://t.me/bimlearningsoft وب سایت ما: WWW.IRAN-BIM.COM/SHOP
آموزش رویت-پارت نهم
سرفصل پارت نهم: توضیح محیط مس- ساخت پترن فمیلی در مس- استفاده از پارامتر- ترسیم خرپا
آموزش رویت-پارت یازدهم
سرفصل پارت یازدهم: ادامه محیط مس- ساخت پترن با پارامتر- مدل های پیچیده سطح2
آموزش رویت-پارت دوازدهم
سرفصل پارت دوازدهم- توپوگرافی- تبدیل فایل اتوکد به توپوسورفیس
آموزش رویت-پارت شانزدهم
طراحی نمای کلاسیک وخروجی گرفتن فازدو- تایم آموزش:2ساعت و45دقیقه- :به همراه فایل های تمرین وآبجکت ها
آموزش Revit(رویت) – پلانیک
پلانیک | وبسایت تخصصی معماری آموزش های مختلف و کاربردی را در زمینه های معماری و عمران در اختیار شما عزیزان میگذارد
آموزش نصب رویت 2019
در این ویدیو به شما طریقه صحیح نصب نرم افزار رویت 2019 را همراه با فراخوانی اتوماتیک تمپلیت ها و مبلمان های این نرم افزار را آموزش خواهیم داد . برای دیدن آموزش های رایگان به سایت ما مراجعه کنید. www.arcpro93.com
آموزش رندر در رویت
Your First Day Rendering In Revit برای اطلاعات و آموزش های بیشتر به سایت IranBIM.com مراجعه فرمائید.
آموزش پروژه محور رویت
Udemy – 3D Revit Hands-on Workshop + 4 hour live-online Training برای اطلاعات و آموزش های بیشتر به سایت IranBIM.com مراجعه فرمائید.
آموزش نرم افزار رویت
آموزش نرم افزار رویت معماری برانیکو بهترین وبه روز رتین معماری روز جهان در معماری برانیکو تبادل ارتباط: آیدی تلگرام @majidsirosiوشماره تلگرام 09011577312پست الکترونیکی:majid.sirosi1350@gmail.com
آموزش مبانی رویت و مبانی Family ها در رویت
آموزش مبانی رویت و مبانی Family ها در رویت (بقیه آموزش ها در بخش فروشگاه https://sariasan.com)
آموزش رویت استراکچر پاک نظر
پکیج رویت استراکچر محمد پاک نظر کامل ترین پکیج رویت استراکچر محمد پاک نظر مشاوره رایگان در مورد پکیج با شماره تلفن زیر : 09050730415 یا در لینک زیر وارد شوید : https://bimlearn.org/?p=1817
جلسه 17 خرداد آموزش رویت
آموزش رویت جلسه 17 ام قسمت اول دانشگاه شریعتی کلاس کاربرد رایانه
آموزش رویت و پلاگین داینامو
این ویدئو بخشی از مجموعه آموزش نرم افزار Revit 2017 و افزونه Dynamo می باشد که آموزش کامل آن را از لینک زیر می توانید تهیه کنید: https://bit.ly/2N1MUkZ
آشپزی آسان
آموزش اسپرینگ رول به سبک ای دو محصولی از گروه صنعتی پامین www.pamin-co.ir
آموزش نرم افزار رویت – revit
برای مشاهده و خرید کامل دوره به سایت معمار آنلاین به نشانی memaar.online مراجعه نمایید
آموزش Lookup Table در رویت
یکی از مهم ترین مباحثی که کاربران رویت می بایست به خوبی بر روی آن تسلط کامل داشته باشند، بحث OOTB یا همان lookupTable می باشد. در این کلیپ به صورت خیلی ساده سعی کردیم این مبحث را توضیح بدیم. در صورتی که واقعا تمایل به حرفه ای شدن دارید پیشنهاد می کنیم آموزش رویت 2021 را از لینک زیر تهیه کنید www.iran-bim.com/online-shop
آموزش سازه در رویت :3- یادآوری، زبان نرم افزار رویت
قبلا این بخش از آموزش های نرم افزار رویت در بخش معماری گفته شده. پیشنهاد می کنم اگر شما مهندس سازه هستید و تا حالا با رویت کار نکرده اید، اول سری به مجموعه تمرین های رویت معماری در همین کانال من بزنید و قبلا اونها رو ببینید تا با زبان نرم افزار رویت آشنا بشید.
آموزش رویت 2020 – آموزش Revit 2020
شرکت آتودسک هر ساله با بروزرسانی نرم افزارهای خود، باعث می شود که محبوبیت محصولات این شرکت هر ساله بیشتر و بیشتر شود. چراکه با اضافه کردن و بهینه کردن ابزارها، فرآیند انجام کارها را در نرم افزاهای مربوطه افزایش می دهد. نرم افزار Revit به عنوان قوی ترین و برترین نرم افزار در زمینه مدلسازی اطلاعات ساخت (BIM) در سراسر دنیا می باشد و اضافه شدن هرگونه ویژگی های جدید باعث می شود که تمامی کاربران از کارکردن با این نرم افزار لذت ببرند. در این کلیپ اموزشی شما می توانید این ویژگی ها را برای دیسیپلین های معماری، سازه
آموزش رایگان رویت – Revit Architecture – آموزش از اتوکد تا رویت – بخش سوم
آموزش رایگان رویت – Revit Architecture – آموزش از اتوکد تا رویت مدرس : مهندس شهریار مطلبی تست کنند Revit به انتخاب کمپانی اتودسک امریکا و دارنده مدرک پروفشینال رویت از آمریکا سطح مقدماتی – مدلسازی فاز 1 معماری و سازه www.Isatis-bim.com
آموزش رایگان رویت – Revit Architecture – آموزش از اتوکد تا رویت – بخش چهارم
آموزش رایگان رویت – Revit Architecture – آموزش از اتوکد تا رویت مدرس : مهندس شهریار مطلبی تست کنند Revit به انتخاب کمپانی اتودسک امریکا و دارنده مدرک پروفشینال رویت از آمریکا سطح مقدماتی – مدلسازی فاز 1 معماری و سازه www.Isatis-bim.com
آموزش رایگان رویت – Revit Architecture – آموزش از اتوکد تا رویت – بخش پنجم
آموزش رایگان رویت – Revit Architecture – آموزش از اتوکد تا رویت مدرس : مهندس شهریار مطلبی تست کنند Revit به انتخاب کمپانی اتودسک امریکا و دارنده مدرک پروفشینال رویت از آمریکا سطح مقدماتی – مدلسازی فاز 1 معماری و سازه www.Isatis-bim.com
آموزش رایگان رویت – Revit Architecture – آموزش از اتوکد تا رویت – بخش هجدهم
آموزش رایگان رویت – Revit Architecture – آموزش از اتوکد تا رویت مدرس : مهندس شهریار مطلبی تست کنند Revit به انتخاب کمپانی اتودسک امریکا و دارنده مدرک پروفشینال رویت از آمریکا سطح مقدماتی – مدلسازی فاز 1 معماری و سازه www.Isatis-bim.com
آموزش رویت ارکیتکچر – بخش سوم
مجتمع فنی تهران- نمایندگی میرداماد
www.mftmirdamad.com
آموزش رویت : جلسه هشتاد ام
آموزش رویت / منبع : آرچ فایل / لینک سایت : ArchFile.ir
آموزش رویت IranBIM – قسمت دوم
بخش دوم آموزش آشنایی با رویت محصول وبسایت جامع IranBIM.com
آموزش رویت جلسه ی دوم
آموزش معماری هیرا 021-44003844 instagram:architect_design_memari مدزس: مهندس حسینی برای خرید باقی فیلم های آموزشی یا شرکت در دوره های آموزشی این مجموعه می توانید با شماره درج شده تماس بگیرید- 44003844- هیرا
آموزش رویت 2017-جلسه سوم
جلسه سوم: آشنایی با ترسیمات دیوار برای دسترسی به آموزش های بیشتر به وب سایت و کانال تلگرامی ما مراجعه کنید. http://archiclassic.ir این آموزش ضبط شده از یک دوره آموزش فشرده رویت استاد بستگانی فقط در سه روز می باشد. برای آموزش های جامع مقدماتی تا فوق پیشرفته میتوانید پکیج استاد را از همین سایت تهیه کنید
آموزش رویت 2016 – قسمت سوم
قسمت سوم توسط : مهندس ایمان کوشکی مدرس تخصصی طراحی داخلی و نرم افزار های معماری www.imankoushki.com
آموزش رویت 2017-جلسه ششم
جلسه ششم: آشنایی با ابزار های ویرایشی لایه بندی دیوار برای دسترسی به آموزش های بیشتر به وب سایت و کانال تلگرامی ما مراجعه کنید. http://archiclassic.ir این آموزش ضبط شده از یک دوره آموزش فشرده رویت استاد بستگانی فقط در سه روز می باشد. برای آموزش های جامع مقدماتی تا فوق پیشرفته میتوانید پکیج استاد را از همین سایت تهیه کنید
آموزش رویت 2017-جلسه هفتم
جلسه هفتم: نحوه ترسیم دیوار پرده ای و ویرایشات دیوار برای دسترسی به آموزش های بیشتر به وب سایت و کانال تلگرامی ما مراجعه کنید. http://archiclassic.ir این آموزش ضبط شده از یک دوره آموزش فشرده رویت استاد بستگانی فقط در سه روز می باشد. برای آموزش های جامع مقدماتی تا فوق پیشرفته میتوانید پکیج استاد را از همین سایت تهیه کنید
آموزش رویت 2017-جلسه چهارم
جلسه چهارم: آشنایی با ترسیمات دیوار برای دسترسی به آموزش های بیشتر به وب سایت و کانال تلگرامی ما مراجعه کنید. http://archiclassic.ir این آموزش ضبط شده از یک دوره آموزش فشرده رویت استاد بستگانی فقط در سه روز می باشد. برای آموزش های جامع مقدماتی تا فوق پیشرفته میتوانید پکیج استاد را از همین سایت تهیه کنید
آشپزی آسان
آموزش اسپرینگ رول به سبک ای دو محصولی از گروه صنعتی پامین www.pamin-co.ir
آموزش رایگان رویت – Revit Architecture – آموزش از اتوکد تا رویت – بخش سیزدهم
آموزش رایگان رویت – Revit Architecture – آموزش از اتوکد تا رویت مدرس : مهندس شهریار مطلبی تست کنند Revit به انتخاب کمپانی اتودسک امریکا و دارنده مدرک پروفشینال رویت از آمریکا سطح مقدماتی – مدلسازی فاز 1 معماری و سازه www.Isatis-bim.com
آموزش رایگان رویت – Revit Architecture – آموزش از اتوکد تا رویت – بخش هشتم
آموزش رایگان رویت – Revit Architecture – آموزش از اتوکد تا رویت مدرس : مهندس شهریار مطلبی تست کنند Revit به انتخاب کمپانی اتودسک امریکا و دارنده مدرک پروفشینال رویت از آمریکا سطح مقدماتی – مدلسازی فاز 1 معماری و سازه www.Isatis-bim.com
آموزش رویت 2017-جلسه دوم
آموزش مقدماتی تا متوسطه نرم افزار Revit (مهندس الیاس بستگانی) جلسه دوم: آشنایی با لول بندی و ترازهای طبقاتی برای دسترسی به آموزش های بیشتر به وب سایت و کانال تلگرامی ما مراجعه کنید. http://archiclassic.ir این آموزش ضبط شده از یک دوره آموزش فشرده رویت استاد بستگانی فقط در سه روز می باشد. برای آموزش های جامع مقدماتی تا فوق پیشرفته میتوانید پکیج استاد را از همین سایت تهیه کنید
آموزش رویت 2017-جلسه اول
آموزش مقدماتی تا متوسطه نرم افزار Revit (مهندس الیاس بستگانی) جلسه اول: آشنایی با محیط نرم افزار Revit برای دسترسی به آموزش های بیشتر به وب سایت و کانال تلگرامی ما مراجعه کنید. http://archiclassic.ir این آموزش ضبط شده از یک دوره آموزش فشرده رویت استاد بستگانی فقط در سه روز می باشد. برای آموزش های جامع مقدماتی تا فوق پیشرفته میتوانید پکیج استاد را از همین سایت تهیه کنید
آموزش رویت : جلسه هفتاد ام
آموزش رویت / منبع : آرچ فایل / لینک سایت : ArchFile.ir
آموزش رویت : جلسه شصت ام
آموزش رویت / منبع : آرچ فایل / لینک سایت : ArchFile.ir
آموزش رویت IranBIM – قسمت اول
بخش اول آموزش آشنایی با رویت محصول وبسایت جامع IranBIM.com
آموزش رویت 2016 – قسمت اول
قسمت اول توسط : مهندس ایمان کوشکی مدرس تخصصی طراحی داخلی و نرم افزار های معماری www.imankoushki.com
آموزش رویت IranBIM – قسمت سوم
بخش سوم آموزش آشنایی با رویت محصول وبسایت جامع IranBIM.com
آموزش رویت استراکچر – جلسه اول
برای مشاهده سایر جلسات و همچنین آموزش های دیگر به وبسایت ما مراجعه فرمایید www.omranovin.ir
آموزش رویت استراکچر – جلسه دوم
برای دانلود سایر جلسات به وبسایت www.omranovin.ir مراجعه فرمایید.
آموزش رویت 2017-جلسه هفدهم
آموزش مقدماتی تا متوسطه نرم افزار Revit (مهندس الیاس بستگانی) جلسه هفدهم: آموزش انتقال پلان اتوکد به رویت و رویت به اتوکد برای دسترسی به آموزش های بیشتر به وب سایت و کانال تلگرامی ما مراجعه کنید. http://archiclassic.ir این آموزش ضبط شده از یک دوره آموزش فشرده رویت استاد بستگانی فقط در سه روز می باشد. برای آموزش های جامع مقدماتی تا فوق پیشرفته میتوانید پکیج استاد را از همین سایت تهیه کنید
آموزش رویت 2017-جلسه پانزدهم
آموزش مقدماتی تا متوسطه نرم افزار Revit (مهندس الیاس بستگانی) جلسه پانزدهم: آموزش ترسیم رمپ و شیب راهه برای دسترسی به آموزش های بیشتر به وب سایت و کانال تلگرامی ما مراجعه کنید. http://archiclassic.ir این آموزش ضبط شده از یک دوره آموزش فشرده رویت استاد بستگانی فقط در سه روز می باشد. برای آموزش های جامع مقدماتی تا فوق پیشرفته میتوانید پکیج استاد را از همین سایت تهیه کنید
آموزش رویت 2017-جلسه دهم
آموزش مقدماتی تا متوسطه نرم افزار Revit (مهندس الیاس بستگانی) جلسه دهم: روش طراحی داخلی با ابزار Extrusion برای دسترسی به آموزش های بیشتر به وب سایت و کانال تلگرامی ما مراجعه کنید. http://archiclassic.ir این آموزش ضبط شده از یک دوره آموزش فشرده رویت استاد بستگانی فقط در سه روز می باشد. برای آموزش های جامع مقدماتی تا فوق پیشرفته میتوانید پکیج استاد را از همین سایت تهیه کنید
آموزش رویت 2017-جلسه پنجم
جلسه پنجم: آشنایی با ابزار های ویرایشی برای دسترسی به آموزش های بیشتر به وب سایت و کانال تلگرامی ما مراجعه کنید. http://archiclassic.ir این آموزش ضبط شده از یک دوره آموزش فشرده رویت استاد بستگانی فقط در سه روز می باشد. برای آموزش های جامع مقدماتی تا فوق پیشرفته میتوانید پکیج استاد را از همین سایت تهیه کنید
آموزش رویت 2017-جلسه دوازدهم
آموزش مقدماتی تا متوسطه نرم افزار Revit (مهندس الیاس بستگانی) جلسه دوازدهم: آشنایی با ابزار Sweep belend- Void family برای دسترسی به آموزش های بیشتر به وب سایت و کانال تلگرامی ما مراجعه کنید. http://archiclassic.ir این آموزش ضبط شده از یک دوره آموزش فشرده رویت استاد بستگانی فقط در سه روز می باشد. برای آموزش های جامع مقدماتی تا فوق پیشرفته میتوانید پکیج استاد را از همین سایت تهیه کنید
آموزش رویت 2019 جلسه 3
آموزش رویت 2019 جلسه 3 آموزش های بیشتر در وب سایت www.Bimlearn.org
آموزش رویت اتواسپرینک-Fixed Spacing
آموزش تخصصی اطفا حریق، اعلان وتهویه دود
آموزش پلاگین رویت اتواسپرینک، برای مشاهده آموزش های بیشتر به سایت ما مراجعه نمایید. edufire.ir
آموزش رویت اتواسپرینک-Variable Spacing
آموزش تخصصی اطفا حریق، اعلان وتهویه دود
آموزش پلاگین رویت اتواسپرینک، برای مشاهده آموزش های بیشتر به سایت ما مراجعه نمایید. edufire.ir
آشپزی آسان
آموزش اسپرینگ رول به سبک ای دو محصولی از گروه صنعتی پامین www.pamin-co.ir
آموزش رویت استراکچر – جلسه 32
برای دانلود نسخه کامل این آموزش به وبسایت عمران نوین مراجعه فرمایید
آموزش رویت استراکچر – جلسه یازدهم
برای دانلود فایل کامل این آموزش به وبسایت ما مراجعه کنید . www.omranovin.ir
آموزش رویت 2016 – قسمت شانزدهم
قسمت شانزدهم توسط : مهندس ایمان کوشکی مدرس تخصصی طراحی داخلی و نرم افزار های معماری www.imankoushki.com
آموزش رویت استراکچر – جلسه دوازدهم
برای دانلود نسخه کامل به وبسایت ما مراجعه فرمایید . www.omranovin.ir
آموزش رویت استراکچر – جلسه دهم
برای دانلود نسخه کامل این آموزش به وبسایت ما مراجعه فرمایید www.omranovin.ir
آموزش رویت استراکچر – جلسه 19
برای دانلود نسخه کامل این آموزش ب وبسایت ما مراجعه فرمایید
آموزش رویت استراکچر – جلسه 15
برای دانلود نسخه کامل به وبسایت ما مراجعه فرمایید www.omranovin.ir
آموزش طراحی سقف در رویت
آموزش طراحی و مدل سازی سقف ساختمان در رویت دانلود رایگان این آموزش از لینک زیر : https://arch-projects.com/roof-design-revit/
آموزش ساخت متریال در رویت
آموزش حرفه ای و کاربردی ساخت و مدل سازی متریال در رویت دانلود رایگان این آموزش از لینک زیر : https://arch-projects.com/learning-material-revit/
آموزش ساخت پله در رویت
در این ویدئو شما با نحوه ی ساختن و ایجاد کردن پله در رویت آشنا میشید. ویدئو رو کامل ببینید اگر هم سوالی داشتید بپرسید.
آموزش رایگان رویت معماری-قسمت35
در این قسمت به ابزار room می پردازیم و نحوه فضابندی اتاق ها و خروجی مساحت آن ها را مورد بررسی قرار میدهیم فایل های تمرینی در کانال تلگرامی ما @tat_bim
آموزش کلیات رویت آرکیتکچر – آریاگستر
توضیحات بیشتر مجموعه : http://aryagostarafzar.com/shop/revit-architecture-pack1 http://aryagostarafzar.com/shop/revit-architecture-pack2 http://AryaGostarAfzar.com صفر تا صد رویت آرکیتکچر – پک شماره 1 آموزش رویت آرکیتکچر ، ابر نرم افزار مدلسازی اطلاعات ساختمان ویژه مهندسین معماری و عمران Revit Architecture جایگزین رسمی اتوکد برای مهندسین آموزش گام به گام نرم افزار رویت نسخه آرکیتکچر – پک شماره یک و دو Autodesk Revit Architecture Essential Training Part 1
دوره آموزش کامل رویت ( Revit )
رویت (Revit) نرم افزار مدل سازی اطلاعات ساختمان است که مهندسان و معماران برای مدل سازی سه بعدی و ترسیم جزئیات ساختمانی استفاده می کنند.نرم افزار رویت ( Autodesk Revit ) نرم افزاری برای معماران، مهندسان ساختمانی، مهندسان فنی، برق کاری و لوله کشی، طراحان و پیمانکاران است. (در این مقاله ببینیدbim چیست ؟)..آدرس مشاهده کامل این دوره آموزشی: https://www.limoonad.com/course/111093
آموزش رویت 2017-جلسه دوم
آموزش مقدماتی تا متوسطه نرم افزار Revit (مهندس الیاس بستگانی) جلسه دوم: آشنایی با لول بندی و ترازهای طبقاتی برای دسترسی به آموزش های بیشتر به وب سایت و کانال تلگرامی ما مراجعه کنید. http://archiclassic.ir این آموزش ضبط شده از یک دوره آموزش فشرده رویت استاد بستگانی فقط در سه روز می باشد. برای آموزش های جامع مقدماتی تا فوق پیشرفته میتوانید پکیج استاد را از همین سایت تهیه کنید
آموزش رویت 2017-جلسه اول
آموزش مقدماتی تا متوسطه نرم افزار Revit (مهندس الیاس بستگانی) جلسه اول: آشنایی با محیط نرم افزار Revit برای دسترسی به آموزش های بیشتر به وب سایت و کانال تلگرامی ما مراجعه کنید. http://archiclassic.ir این آموزش ضبط شده از یک دوره آموزش فشرده رویت استاد بستگانی فقط در سه روز می باشد. برای آموزش های جامع مقدماتی تا فوق پیشرفته میتوانید پکیج استاد را از همین سایت تهیه کنید
آموزش رویت : جلسه هفتاد ام
آموزش رویت / منبع : آرچ فایل / لینک سایت : ArchFile.ir
آموزش رویت : جلسه شصت ام
آموزش رویت / منبع : آرچ فایل / لینک سایت : ArchFile.ir
آموزش رویت IranBIM – قسمت اول
بخش اول آموزش آشنایی با رویت محصول وبسایت جامع IranBIM.com
آموزش رویت 2016 – قسمت اول
قسمت اول توسط : مهندس ایمان کوشکی مدرس تخصصی طراحی داخلی و نرم افزار های معماری www.imankoushki.com
آشپزی آسان
آموزش اسپرینگ رول به سبک ای دو محصولی از گروه صنعتی پامین www.pamin-co.ir
آموزش رویت استراکچر – جلسه اول
برای مشاهده سایر جلسات و همچنین آموزش های دیگر به وبسایت ما مراجعه فرمایید www.omranovin.ir
آموزش رویت IranBIM – قسمت سوم
بخش سوم آموزش آشنایی با رویت محصول وبسایت جامع IranBIM.com
آموزش رویت استراکچر – جلسه دوم
برای دانلود سایر جلسات به وبسایت www.omranovin.ir مراجعه فرمایید.
آموزش رویت 2017-جلسه هفدهم
آموزش مقدماتی تا متوسطه نرم افزار Revit (مهندس الیاس بستگانی) جلسه هفدهم: آموزش انتقال پلان اتوکد به رویت و رویت به اتوکد برای دسترسی به آموزش های بیشتر به وب سایت و کانال تلگرامی ما مراجعه کنید. http://archiclassic.ir این آموزش ضبط شده از یک دوره آموزش فشرده رویت استاد بستگانی فقط در سه روز می باشد. برای آموزش های جامع مقدماتی تا فوق پیشرفته میتوانید پکیج استاد را از همین سایت تهیه کنید
آموزش رویت 2017-جلسه پانزدهم
آموزش مقدماتی تا متوسطه نرم افزار Revit (مهندس الیاس بستگانی) جلسه پانزدهم: آموزش ترسیم رمپ و شیب راهه برای دسترسی به آموزش های بیشتر به وب سایت و کانال تلگرامی ما مراجعه کنید. http://archiclassic.ir این آموزش ضبط شده از یک دوره آموزش فشرده رویت استاد بستگانی فقط در سه روز می باشد. برای آموزش های جامع مقدماتی تا فوق پیشرفته میتوانید پکیج استاد را از همین سایت تهیه کنید
آموزش رویت 2017-جلسه دهم
آموزش مقدماتی تا متوسطه نرم افزار Revit (مهندس الیاس بستگانی) جلسه دهم: روش طراحی داخلی با ابزار Extrusion برای دسترسی به آموزش های بیشتر به وب سایت و کانال تلگرامی ما مراجعه کنید. http://archiclassic.ir این آموزش ضبط شده از یک دوره آموزش فشرده رویت استاد بستگانی فقط در سه روز می باشد. برای آموزش های جامع مقدماتی تا فوق پیشرفته میتوانید پکیج استاد را از همین سایت تهیه کنید
آموزش رویت 2017-جلسه پنجم
جلسه پنجم: آشنایی با ابزار های ویرایشی برای دسترسی به آموزش های بیشتر به وب سایت و کانال تلگرامی ما مراجعه کنید. http://archiclassic.ir این آموزش ضبط شده از یک دوره آموزش فشرده رویت استاد بستگانی فقط در سه روز می باشد. برای آموزش های جامع مقدماتی تا فوق پیشرفته میتوانید پکیج استاد را از همین سایت تهیه کنید
آموزش رویت 2017-جلسه دوازدهم
آموزش مقدماتی تا متوسطه نرم افزار Revit (مهندس الیاس بستگانی) جلسه دوازدهم: آشنایی با ابزار Sweep belend- Void family برای دسترسی به آموزش های بیشتر به وب سایت و کانال تلگرامی ما مراجعه کنید. http://archiclassic.ir این آموزش ضبط شده از یک دوره آموزش فشرده رویت استاد بستگانی فقط در سه روز می باشد. برای آموزش های جامع مقدماتی تا فوق پیشرفته میتوانید پکیج استاد را از همین سایت تهیه کنید
آموزش رویت اتواسپرینک-Fixed Spacing
آموزش تخصصی اطفا حریق، اعلان وتهویه دود
آموزش پلاگین رویت اتواسپرینک، برای مشاهده آموزش های بیشتر به سایت ما مراجعه نمایید. edufire.ir
آموزش رویت اتواسپرینک-Variable Spacing
آموزش تخصصی اطفا حریق، اعلان وتهویه دود
آموزش پلاگین رویت اتواسپرینک، برای مشاهده آموزش های بیشتر به سایت ما مراجعه نمایید. edufire.ir
آموزش رویت 2019 جلسه 3
آموزش رویت 2019 جلسه 3 آموزش های بیشتر در وب سایت www.Bimlearn.org
آموزش رویت اتواسپرینک-AutoBranchLine Overview
آموزش تخصصی اطفا حریق، اعلان وتهویه دود
آموزش پلاگین رویت اتواسپرینک، برای مشاهده آموزش های بیشتر به سایت ما مراجعه نمایید. edufire.ir
آموزش رویت IranBIM – قسمت پنجم
بخش پنجم آموزش آشنایی با رویت محصول وبسایت جامع IranBIM.com
آموزش رویت استراکچر – جلسه 50
برای دانلود نسخه کامل آموزش و سایر قسمت ها به وبسایت ما مراجعه فرمایید
تیزر پکیج قدرتمند آموزش رویت
ماتیکان منتشر کرد: پکیج آموزش رویت، مقدماتی تا پیشرفته به صورت پروژه محور آموزش طراحی داخلی طراحی نما اموزش مراحل رندرگیری ساخت احجام پیچیده آموزش فاز ۲ و میلگرد گذاری آموزش کامل متره و برآورد طراحی ویلا آموزش ابزار داینامو استفاده از ابزارهایی همانند لینک و ایمپورت در رویت آموزش مقدماتی تری دی مکس و……
آموزش رویت 2019 جلسه 4
آموزش رویت 2019 جلسه 4 آموزش های بیشتر در وب سایت www.Bimlearn.org مدرس محمد پاک نظر
آموزش رویت 2016 – قسمت هشتم
قسمت هشتم توسط : مهندس ایمان کوشکی مدرس تخصصی طراحی داخلی و نرم افزار های معماری www.imankoushki.com
آموزش رویت استراکچر – جلسه پنجم
برای دانلود سایر جلسات به وبسایت www.omranovin.ir مراجعه فرمایید
آموزش رویت استراکچر – جلسه ششم
برای دانلود سایر قسمت ها به وبسایت ما مراجعه فرمایید . www.omranovin.ir
آموزش رویت استراکچر – جلسه چهارم
برای دانلود نسخه کامل به وبسایت ما مراجعه کنید www.omranovin.ir
آشپزی آسان
آموزش اسپرینگ رول به سبک ای دو محصولی از گروه صنعتی پامین www.pamin-co.ir
آموزش پلاگین Enscape برای رویت
آموزش پلاگین واقعیت مجازی Enscape برای Revit دانلود رایگان این آموزش از لینک زیر: https://architect-shop.com/product/enscape-revit-tutorial/
آموزش رویت اتواسپرینک- AutoBranchLine Overview
آموزش تخصصی اطفا حریق، اعلان وتهویه دود
آموزش پلاگین رویت اتواسپرینک، برای مشاهده آموزش های بیشتر به سایت ما مراجعه نمایید. edufire.ir
آموزش رویت 2019 جلسه 5
آموزش رویت 2019 جلسه 5 آموزش های بیشتر در وب سایت www.Bimlearn.org مدرس محمد پاک نظر
آموزش رویت استراکچر -جلسه 49
برای دانلود سخه کامل این آموزش به وبسایت ما مراجعه نمایید
آموزش رویت 2016 – قسمت هفتم
قسمت هفتم توسط : مهندس ایمان کوشکی مدرس تخصصی طراحی داخلی و نرم افزار های معماری www.imankoushki.com
آموزش رویت استراکچر – جلسه 48
برای دانلود نسخه کامل این آموزش به وبسایت ما مراجعه فرمایید www.omranovin.ir
آموزش رویت استراکچر – جلسه 33
برای دانلود نسخه کامل به وبسایت ما مراجعه نمایید
آموزش رویت استراکچر – جلسه 16
برای دانلود کامل این ویدئو به وبسایت ما مراجعه فرمایید. www.omranovin.ir
آموزش رویت استراکچر – جلسه سیزدهم
برای دانلود نسخه کامل به وبسایت ما مراجعه فرمایید . www.omranovin.ir
آموزش رویت 2016 – قسمت نهم
قسمت نهم توسط : مهندس ایمان کوشکی مدرس تخصصی طراحی داخلی و نرم افزار های معماری www.imankoushki.com
آموزش رویت استراکچر – جلسه 31
برای دانلود نسخه کامل به وبسایت عمران نوین مراجعه کنید
آموزش رویت 2016 – قسمت پانزدهم
قسمت پانزدهم توسط : مهندس ایمان کوشکی مدرس تخصصی طراحی داخلی و نرم افزار های معماری www.imankoushki.com
آموزش رویت 2016 – قسمت نوزدهم
قسمت نوزدهم توسط : مهندس ایمان کوشکی مدرس تخصصی طراحی داخلی و نرم افزار های معماری www.imankoushki.com
آموزش رویت 2016 – قسمت چهاردهم
قسمت چهاردهم توسط : مهندس ایمان کوشکی مدرس تخصصی طراحی داخلی و نرم افزار های معماری www.imankoushki.com
آموزش رویت استراکچر – جلسه 35
برای دانلود نسخه کامل به وبسایت ما مراجعه فرمایید
آموزش رویت استراکچر – جلسه نهم
نسخه کامل این آموزش را در وبسایت www.omranovin.ir دریافت کنید
آموزش رویت 2016 – قسمت پنجم
قسمت پنجم توسط : مهندس ایمان کوشکی مدرس تخصصی طراحی داخلی و نرم افزار های معماری www.imankoushki.com
آموزش رویت استراکچر – جلسه 32
برای دانلود نسخه کامل این آموزش به وبسایت عمران نوین مراجعه فرمایید
آموزش رویت استراکچر – جلسه یازدهم
برای دانلود فایل کامل این آموزش به وبسایت ما مراجعه کنید . www.omranovin.ir
آشپزی آسان
آموزش اسپرینگ رول به سبک ای دو محصولی از گروه صنعتی پامین www.pamin-co.ir
آموزش رویت 2016 – قسمت شانزدهم
قسمت شانزدهم توسط : مهندس ایمان کوشکی مدرس تخصصی طراحی داخلی و نرم افزار های معماری www.imankoushki.com
آموزش رویت استراکچر – جلسه دوازدهم
برای دانلود نسخه کامل به وبسایت ما مراجعه فرمایید . www.omranovin.ir
آموزش رویت استراکچر – جلسه دهم
برای دانلود نسخه کامل این آموزش به وبسایت ما مراجعه فرمایید www.omranovin.ir
آموزش رویت استراکچر – جلسه 19
برای دانلود نسخه کامل این آموزش ب وبسایت ما مراجعه فرمایید
آموزش رویت استراکچر – جلسه 15
برای دانلود نسخه کامل به وبسایت ما مراجعه فرمایید www.omranovin.ir
آموزش طراحی سقف در رویت
آموزش طراحی و مدل سازی سقف ساختمان در رویت دانلود رایگان این آموزش از لینک زیر : https://arch-projects.com/roof-design-revit/
آموزش ساخت متریال در رویت
آموزش حرفه ای و کاربردی ساخت و مدل سازی متریال در رویت دانلود رایگان این آموزش از لینک زیر : https://arch-projects.com/learning-material-revit/
آموزش ساخت پله در رویت
در این ویدئو شما با نحوه ی ساختن و ایجاد کردن پله در رویت آشنا میشید. ویدئو رو کامل ببینید اگر هم سوالی داشتید بپرسید.
آموزش رایگان رویت معماری-قسمت35
در این قسمت به ابزار room می پردازیم و نحوه فضابندی اتاق ها و خروجی مساحت آن ها را مورد بررسی قرار میدهیم فایل های تمرینی در کانال تلگرامی ما @tat_bim
آموزش کلیات رویت آرکیتکچر – آریاگستر
توضیحات بیشتر مجموعه : http://aryagostarafzar.com/shop/revit-architecture-pack1 http://aryagostarafzar.com/shop/revit-architecture-pack2 http://AryaGostarAfzar.com صفر تا صد رویت آرکیتکچر – پک شماره 1 آموزش رویت آرکیتکچر ، ابر نرم افزار مدلسازی اطلاعات ساختمان ویژه مهندسین معماری و عمران Revit Architecture جایگزین رسمی اتوکد برای مهندسین آموزش گام به گام نرم افزار رویت نسخه آرکیتکچر – پک شماره یک و دو Autodesk Revit Architecture Essential Training Part 1
دوره آموزش کامل رویت ( Revit )
رویت (Revit) نرم افزار مدل سازی اطلاعات ساختمان است که مهندسان و معماران برای مدل سازی سه بعدی و ترسیم جزئیات ساختمانی استفاده می کنند.نرم افزار رویت ( Autodesk Revit ) نرم افزاری برای معماران، مهندسان ساختمانی، مهندسان فنی، برق کاری و لوله کشی، طراحان و پیمانکاران است. (در این مقاله ببینیدbim چیست ؟)..آدرس مشاهده کامل این دوره آموزشی: https://www.limoonad.com/course/111093
آموزش سازه در رویت :9- کالیبراسیون آکس و تراز در رویت
اتصال یک فایل معماری به پروژه سازه در رویت چگونه است؟ اگر معمار تغییراتی در مدل خود بدهد، چگونه مهندس سازه با خبر می شود؟ آیا رویت امکاناتی برای کم کردن خطای انسانی دارد؟ کالیبراسیون چیست و چگونه کار می کند؟
آموزش رویت 2017-جلسه هجدهم
آموزش مقدماتی تا متوسطه نرم افزار Revit (مهندس الیاس بستگانی) جلسه هجدهم: آموزش کامل اندازه گذاری پلان برای دسترسی به آموزش های بیشتر به وب سایت و کانال تلگرامی ما مراجعه کنید. http://archiclassic.ir این آموزش ضبط شده از یک دوره آموزش فشرده رویت استاد بستگانی فقط در سه روز می باشد. برای آموزش های جامع مقدماتی تا فوق پیشرفته میتوانید پکیج استاد را از همین سایت تهیه کنید
آموزش رویت 2017-جلسه یازدهم
آموزش مقدماتی تا متوسطه نرم افزار Revit (مهندس الیاس بستگانی) جلسه یازدهم: آشنایی با ابزار Blend-Revolve-Sweep برای دسترسی به آموزش های بیشتر به وب سایت و کانال تلگرامی ما مراجعه کنید. http://archiclassic.ir این آموزش ضبط شده از یک دوره آموزش فشرده رویت استاد بستگانی فقط در سه روز می باشد. برای آموزش های جامع مقدماتی تا فوق پیشرفته میتوانید پکیج استاد را از همین سایت تهیه کنید
آموزش رویت 2017-جلسه نهم
آموزش مقدماتی تا متوسطه نرم افزار Revit (مهندس الیاس بستگانی) جلسه نهم: کار با ابزار similar و حجم سازی فمیلی برای دسترسی به آموزش های بیشتر به وب سایت و کانال تلگرامی ما مراجعه کنید. http://archiclassic.ir این آموزش ضبط شده از یک دوره آموزش فشرده رویت استاد بستگانی فقط در سه روز می باشد. برای آموزش های جامع مقدماتی تا فوق پیشرفته میتوانید پکیج استاد را از همین سایت تهیه کنید
آموزش رویت 2017-جلسه هشتم
جلسه هشتم: نحوه ترسیم در و پنجره و ایجاد مبلمان برای دسترسی به آموزش های بیشتر به وب سایت و کانال تلگرامی ما مراجعه کنید. http://archiclassic.ir این آموزش ضبط شده از یک دوره آموزش فشرده رویت استاد بستگانی فقط در سه روز می باشد. برای آموزش های جامع مقدماتی تا فوق پیشرفته میتوانید پکیج استاد را از همین سایت تهیه کنید
آموزش رویت 2019 جلسه 2
آموزش رویت 2019 جلسه 2 آموزش های بیشتر در وب سایت www.Bimlearn.org
آشپزی آسان
آموزش اسپرینگ رول به سبک ای دو محصولی از گروه صنعتی پامین www.pamin-co.ir
ویدیو آموزش رویت Revit 2017
ویدیو آموزش رویت Revit 2017 در سایت https://sariasan.com
آموزش رویت IranBIM – قسمت هفتم
بخش هفتم آموزش آشنایی با رویت محصول وبسایت جامع IranBIM.com
آموزش رویت IranBIM – قسمت چهارم
بخش چهارم آموزش آشنایی با رویت محصول وبسایت جامع IranBIM.com
آموزش رویت IranBIM – قسمت هشتم
بخش هشتم آموزش آشنایی با رویت محصول وبسایت جامع IranBIM.com
آموزش رویت 2019 جلسه 1
آموزش رویت 2019 جلسه 1 آموزش های بیشتر در وب سایت http://www.Bimlearn.org مدرس محمد پاک نظر
آموزش رویت Revit 2017 فارسی
آموزش رویت 2017 نرم افزار طراحی و مدل سازی پارامتریک و مفهومی در معماری ساختمان سطح مقدماتی تا پیشرفته به زبان فارسی و شیوه مالتی مدیا بیش از 12 ساعت آموزش تصویری Revit 2017 همراه با نرم افزار و پروژه های آموزش داده شده در 46 فصل و 46 عنوان درسی و .. توضیحات بیشتر و خرید از فروشگاه اینترنتی لیمو استور http://limoostore.com/lw-0203
آموزش رویت 2016 – قسمت چهارم
قسمت چهارم توسط : مهندس ایمان کوشکی مدرس تخصصی طراحی داخلی و نرم افزار های معماری www.imankoushki.com
آموزش رویت 2016 – قسمت دهم
قسمت دهم توسط : مهندس ایمان کوشکی مدرس تخصصی طراحی داخلی و نرم افزار های معماری www.imankoushki.com
آموزش رویت 2016 – قسمت یازدهم
قسمت یازدهم توسط : مهندس ایمان کوشکی مدرس تخصصی طراحی داخلی و نرم افزار های معماری www.imankoushki.com
آموزش رویت استراکچر – جلسه 34
برای دانلود نسخه کامل این آموزش به وبسایت عمران نوین مراجعه فرمایید
آموزش رویت استراکچر – جلسه 42
برای دانلود نسخه کامل به وبسایت ما مراجعه نمایید
آموزش رویت استراکچر – جلسه 44
برای دانلود نسخه کامل به وبسایت ما مراجعه کنید
آموزش رویت استراکچر – جلسه 36
برای دانلود نسخه کامل ب وبسایت ما مراجعه فرمایید
آموزش رویت استراکچر – جلسه 33
برای دانلود نسخه کامل این آموزش به وبسایت عمران نوین مراجعه فرمایید
آموزش رویت استراکچر – جلسه 39
برای دانلود نسخه کامل به وبسایت ما مراجعه نمایید
آموزش رویت 2016 – قسمت هجدهم
قسمت هفدهم توسط : مهندس ایمان کوشکی مدرس تخصصی طراحی داخلی و نرم افزار های معماری www.imankoushki.com
آموزش رویت 2016 – قسمت هفدهم
قسمت هفدهم توسط : مهندس ایمان کوشکی مدرس تخصصی طراحی داخلی و نرم افزار های معماری www.imankoushki.com
آموزش رویت 2016 – قسمت دوازدهم
قسمت دوازدهم توسط : مهندس ایمان کوشکی مدرس تخصصی طراحی داخلی و نرم افزار های معماری www.imankoushki.com
آموزش رویت استراکچر – جلسه 38
برای دانلود نسخه کامل این آموزش به وبسایت ما مراجعه فرمایید
آشپزی آسان
آموزش اسپرینگ رول به سبک ای دو محصولی از گروه صنعتی پامین www.pamin-co.ir
آموزش رویت 2016 – قسمت هفدهم
قسمت هفدهم توسط : مهندس ایمان کوشکی مدرس تخصصی طراحی داخلی و نرم افزار های معماری www.imankoushki.com
آموزش رویت 2016 – قسمت دوازدهم
قسمت دوازدهم توسط : مهندس ایمان کوشکی مدرس تخصصی طراحی داخلی و نرم افزار های معماری www.imankoushki.com
آموزش رویت استراکچر – جلسه 38
برای دانلود نسخه کامل این آموزش به وبسایت ما مراجعه فرمایید
آموزش رویت استراکچر – جلسه 45
برای دانلود کامل این آموزش به وبسایت ما مراجعه فرمایید
آموزش رویت استراکچر – جلسه 41
برای دانلود نسخه کامل به وبسایت عمران نوین مراجعه فرمایید
آموزش رویت 2016 – قسمت سیزدهم
قسمت سیزدهم توسط : مهندس ایمان کوشکی مدرس تخصصی طراحی داخلی و نرم افزار های معماری www.imankoushki.com
آموزش رویت استراکچر – جلسه 40
برای دانلود کامل این آموزش به وبسایت ما مراجعه فرمایید
آموزش رویت استراکچر – جلسه 23
برای دانلود نسخه کامل آموزش ها به وبسایت ما مراجعه فرمایید
آموزش ایجاد گنبد در رویت
آموزش ایجاد گنبد کلاسیک در نرم افزار رویت مدرس حسین هواشمی
آموزش ترسیم پله در رویت
آموزش ترسیم با روش های جدید در نرم افزار رویت مدرس:حسین هواشمی
آموزش آنالیز سازه در رویت
آموزش استفاده از ابزارهای آنالیز در رویت دانلود رایگان این آموزش از لینک زیر : https://arch-projects.com/revit-analysis-tool/
آموزش ابزار DECAL در رویت
برای دریافت آموزش های بیشتر مارا در شبکه های اجتماعی دنبال کنید Telegram Channel: https://t.me/tat_bim Aparat Channel: www.aparat.com/TATBIM Linkedin: http://linkedin.com/company/tatbim Youtube Channel: yon.ir/kTMZm
آموزش نصب revit – نصب رویت
در این آموزش نصب رویت 2017 به صورت تصویری آموزش داده شده که البته نحوه نصب در همه ورژن ها یکسان بوده و تفاوتی با هم ندارد . مجتبی امیرخانی .مدرس نرم افزار های معماری . گروه طراحی تری دی خانی
آموزش نوسازی پروژه در رویت
Renovation Projects In Revit برای اطلاعات و آموزش های بیشتر به سایت IranBIM.com مراجعه فرمائید.
دوره آموزش کامل رویت ( Revit )
لینک مشاهده کامل این دوره آموزشی: https://www.limoonad.com/course/111093/دوره-ویدیویی-آموزش-کامل-revit رویت (Revit) نرم افزار مدل سازی اطلاعات ساختمان است که مهندسان و معماران برای مدل سازی سه بعدی و ترسیم جزئیات ساختمانی استفاده می کنند. نرم افزار رویت ( Autodesk Revit ) یک نرم افزار مدل سازی اطلاعات ساختمان ( BIM ) برای معماران، مهندسان ساختمانی، مهندسان فنی، برق کاری و لوله کشی، طراحان و پیمانکاران است.
آموزش ۳dMax برای کاربران رویت
Udemy – 3ds Max Design Tutorial for Revit Users برای اطلاعات و آموزش های بیشتر به سایت IranBIM.com مراجعه فرمائید.
آموزش ساخت علامت در رویت
Lynda.Revit.Create.Signage.Plans برای اطلاعات و آموزش های بیشتر به سایت IranBIM.com مراجعه فرمائید.
آموزش فارسی نویس در رویت
طریقه ی فارسی نویسی در نرم افزار رویت به كمك نرم افزار فارسی نگار مدرس : مهندس آیت مرتعی (مدرس آموزشگاه های معتبر كرج و تهران)
آشپزی آسان
آموزش اسپرینگ رول به سبک ای دو محصولی از گروه صنعتی پامین www.pamin-co.ir
دانلود آموزش فارسی رویت 2014
دانلود کامل این آموزش فارسی و سایر آموزش های ترجمه شده در سایت ( تری دی مکس فارسی ) از زیر : http://goo.gl/ACqfUJ
آموزش سازه در رویت :9- کالیبراسیون آکس و تراز در رویت
اتصال یک فایل معماری به پروژه سازه در رویت چگونه است؟ اگر معمار تغییراتی در مدل خود بدهد، چگونه مهندس سازه با خبر می شود؟ آیا رویت امکاناتی برای کم کردن خطای انسانی دارد؟ کالیبراسیون چیست و چگونه کار می کند؟
آموزش رایگان رویت استراکچر-قسمت 12 -میلگرد گذاری در رویت-2
در این قسمت به ادامه مبحث میلگرد گذاری و نکات مربوط به مدلسازی میلگرد ها در نرم افزار ریت-Revit مورد بررسی قرار می گیرد. برای دانلود فایل های تمرینی وارد وبسایت مابشوید tat-bim.com
آموزش مدلسازی پل با اتودسک رویت (REVIT)- ایجاد Level (طبقات)
آموزش مدلسازی پل با اتودسک رویت (REVIT)- ایجاد Level (طبقات) شما عزیزان می توانید برای مشاهده کامل قسمت ها به صورت رایگان به وبسایت مهندس ابزار به نشانی www.mabzar.com مراجعه فرمایید.
آموزش رویت ( بخشی از جلسه 3 )
در این آموزش رویت شما با چندین مفهوم و ابزار پرکاربرد نرم افزار رویت آشنا می شوید. برای ترسیم در نرم افزار رویت بایستی ابتدا Level های خود را در هر سطح مشخص کنید و بررسی کنید که هر طبقه دارای چه کد ارتفاعی می باشد. در ادامه، Elevations را در نرم افزار رویت بررسی کردیم و راه های مختلف ایجاد طبقات را بیان کرده ایم. برای مشاهده آموزش های رایگان بیشتر به وب سایت آرچ آرت مراجعه نمایید. https://archart.ir ( 0919-892-8348 )
آموزش جامع رویت Revit2021 جلسه سوم
آموزش جامع رویت Revit از پایه تا پیشرفته با سرفصل آموزشی Auto Desk بصورت پروژه محور و مفهومی برای رشته های معماری، عمران، مکانیک، برق و تاسیسات ساختمانی
آموزش محیط ادپتیو مس در رویت
آموزش محیط ادپتیو مس در رویت آموزش های رایگان رویت در لینک زیر: https://bimlearn.org/?p=219
آموزش ساخت راهروی پارامتریک در رویت
در آموزش مدل سازی پارامتریک در رویت با نکات و ترفند های کاربردی گفته شده به شما نحوه مدل سازی پارامتریک و ساخت یک راهرو پارامتریک در فضای family به شما آموزش داده میشود . برای مشاهده آموزش های بیشتر به وبسایت real3d.ir مراجعه نمایید
آموزش جامع رویت Revit2021 جلسه نهم
آموزش جامع رویت Revit از پایه تا پیشرفته با سرفصل آموزشی Auto Desk بصورت پروژه محور و مفهومی برای رشته های معماری، عمران، مکانیک، برق و تاسیسات ساختمانی
آموزش افزونه Warchart برای رویت(2)
آموزش افزونه Warchart برای رویت برای دانلود این افزونه برروی لینک زیر کلیک کنید : https://bimlearn.org/?p=5375
آموزش جامع رویت Revit2021 جلسه دوازدهم
آموزش جامع رویت Revit از پایه تا پیشرفته با سرفصل آموزشی Auto Desk بصورت پروژه محور و مفهومی برای رشته های معماری، عمران، مکانیک، برق و تاسیسات ساختمانی
آموزش سریع رویت(قسمت ۱: معرفی)
معرفی یکی از بهترین نرم افزار های رشته های مهندسی معماری و عمران و…
آموزش جامع رویت Revit2021 جلسه دوم
آموزش جامع رویت Revit از پایه تا پیشرفته با سرفصل آموزشی Auto Desk بصورت پروژه محور و مفهومی برای رشته های معماری، عمران، مکانیک، برق و تاسیسات ساختمانی
آموزش جامع رویت Revit2021 جلسه چهارم
آموزش جامع رویت Revit از پایه تا پیشرفته با سرفصل آموزشی Auto Desk بصورت پروژه محور و مفهومی برای رشته های معماری، عمران، مکانیک، برق و تاسیسات ساختمانی
آموزش جامع رویت Revit2021 جلسه پنجم
آموزش جامع رویت Revit از پایه تا پیشرفته با سرفصل آموزشی Auto Desk بصورت پروژه محور و مفهومی برای رشته های معماری، عمران، مکانیک، برق و تاسیسات ساختمانی
آموزش نصب نرم افزار رویت 2021
همانطور که می دانید آخرین نسخه نرم افزار رویت ، رویت 2021 می باشد که آسان ترین روش نصب رویت را در این ویدئو به شما آموزش داده ایم. امروز رویت نرم افزار فوق العاده ای محسوب می شود و جایگاه ویژه ای در میان مهندسان عمران و معماری و تاسیسات پیدا کرده است. اگه هنوز این نرم افزار را نصب نکردی فقط کافیه قدم به قدم با مشاهده این ویدئو جلو بری. برای مشاهده آموزش های رایگان بیشتر به وب سایت آرچ آرت مراجعه نمایید. https://archart.ir ( 0919-892-8348 )
آموزش مدلسازی نرده حفاظ در رویت
برای مشاهده سایر آموزش ها به وبسایت ما مراجعه فرمایید
آموزش افزونه Warchart برای رویت(3)
آموزش افزونه Warchart برای رویت برای دانلود این افزونه برروی لینک زیر کلیک کنید : https://bimlearn.org/?p=5375
آشپزی آسان
آموزش اسپرینگ رول به سبک ای دو محصولی از گروه صنعتی پامین www.pamin-co.ir
آموزش رویت -Revit 2020 -جلسه سوم
با درودر فراوان خدمت دوستای گلم من کاظم قنبری همراهتونم با یادگیری نرم افزار رویت به شکل کاملا کاربردی و امیدوارم بتونم کنارتون به رسیدن به اهدافتون کمک کنم kazem7318@gmail.com 09153885590 www.arshitclub.ir
آموزش رویت ( بخشی از جلسه 9 )
بخشی از جلسه 9 دوره ی رویت : در این جلسه از رویت می خواهیم به ادامه ی دیگر ویژگی های دیوار Curtain Wall را برای شما بگوییم. گاهی اوقات بعد از ترسیم یکسری از احجام دیگر نیاز به ویرایش ، جابجایی و … ندارند برای اینکه در ادامه مدلسازی آن ها را اشتباهی ویرایش نکنیم میتوانیم از Pin استفاده کنیم و با این کار دیگر هیچ ویرایشی روی آن اعمال نمی شود. برای مشاهده آموزش های رایگان بیشتر به وب سایت آرچ آرت مراجعه نمایید. ( 0919-892-8348 ) https://archart.ir لطفا این ویدیو را تا انتها مشاهده کنید.
آموزش جامع رویت Revit2021 جلسه اول
آموزش جامع رویت Revit از پایه تا پیشرفته با سرفصل آموزشی Auto Desk بصورت پروژه محور و مفهومی برای رشته های معماری، عمران، مکانیک، برق و تاسیسات ساختمانی
آموزش Family ها در رویت – آریاگستر
توضیحات کامل در خصوص این محصول : https://aryagostarafzar.com/shop/revit صفر تا صد آموزش مبانی رویت آموزش مبانی رویت و Family ها در رویت ، نرم افزار مدلسازی اطلاعات ساختمان یا BIM ویژه مهندسین معماری ، عمران ، مکانیک ، برق و تاسیسات آموزش Revit به صورت گام به گام و پروژه محور! پیش نیاز یادگیری هر یک از دوره های تخصصی Architecture, Structure و MEP هر آنچه برای ورود به دنیای Revit و BIM به آن نیاز دارید شامل دو دوره آموزشی : ” آموزش مبانی رویت ” و ” آموزش مبانی Family ها در رویت “
آموزش افزونه Warchart برای رویت(1)
آموزش افزونه Warchart برای رویت برای دانلود این افزونه برروی لینک زیر کلیک کنید : https://bimlearn.org/?p=5375
آموزش جامع رویت Revit2021 جلسه هفتم
آموزش جامع رویت Revit از پایه تا پیشرفته با سرفصل آموزشی Auto Desk بصورت پروژه محور و مفهومی برای رشته های معماری، عمران، مکانیک، برق و تاسیسات ساختمانی
آموزش جامع رویت Revit2021 جلسه یازدهم
آموزش جامع رویت Revit از پایه تا پیشرفته با سرفصل آموزشی Auto Desk بصورت پروژه محور و مفهومی برای رشته های معماری، عمران، مکانیک، برق و تاسیسات ساختمانی
آموزش جامع رویت Revit2021 جلسه دهم
آموزش جامع رویت Revit از پایه تا پیشرفته با سرفصل آموزشی Auto Desk بصورت پروژه محور و مفهومی برای رشته های معماری، عمران، مکانیک، برق و تاسیسات ساختمانی
آموزش جامع رویت Revit2021 جلسه هشتم
آموزش جامع رویت Revit از پایه تا پیشرفته با سرفصل آموزشی Auto Desk بصورت پروژه محور و مفهومی برای رشته های معماری، عمران، مکانیک، برق و تاسیسات ساختمانی
آموزش جامع رویت Revit2021 جلسه ششم
آموزش جامع رویت Revit از پایه تا پیشرفته با سرفصل آموزشی Auto Desk بصورت پروژه محور و مفهومی برای رشته های معماری، عمران، مکانیک، برق و تاسیسات ساختمانی
آموزش_تکنیکال_رویت(آموزش شماره4)_کیا_تدین
برای ثبت نام در دوره ی رویت در معماری(فقط به صورت مجازی در واتساپ برگزار می شود_فیلم میزاریم دانلود _میکنید سوال میپرسید_یاد میگیرد) : که 2 ماه آموزش داره . دوره ها ارزان قیمت هستند
:: موضوعات مرتبط:
آموزش رویت - Revit ,
,
:: برچسبها:
فیلم آموزشی رویت ,
رایگان ,


